Close

DreamScope

 

Are you keen to explore the feasibility of your dream?

Are you considering renovating your home to reflect your current lifestyle, or upgrading your business premises to accommodate a new opportunity?

We now offer this stand-alone service. It allows you to explore the scope of your project, including refining your brief, identifying constraints and opportunities for your site, and understanding the regulatory requirements and likely costs of your dream project.

Aligning a wish list with a budget can be challenging. ‘Dreamscope’ helps you clarify your project’s priorities and scope. It also helps test ideas and obtain realistic cost estimates. During the process, we will review the regulatory requirements of your proposal. In addition, we will prepare a schedule of the specialist consultancy services required. We will also outline the associated fees likely to be incurred. 

This stand-alone service is ideally suited to those looking to investigate the feasibility of their ‘what-if’ project. It is perfect before leaping in boots and all.

IN-TERIA DreamScope is a great service option for those who still need to get ready to commit, allowing you to nut out your (actual) requirements utilising our customised IN-TERIA briefing process. Get in touch to take a step towards your dream.

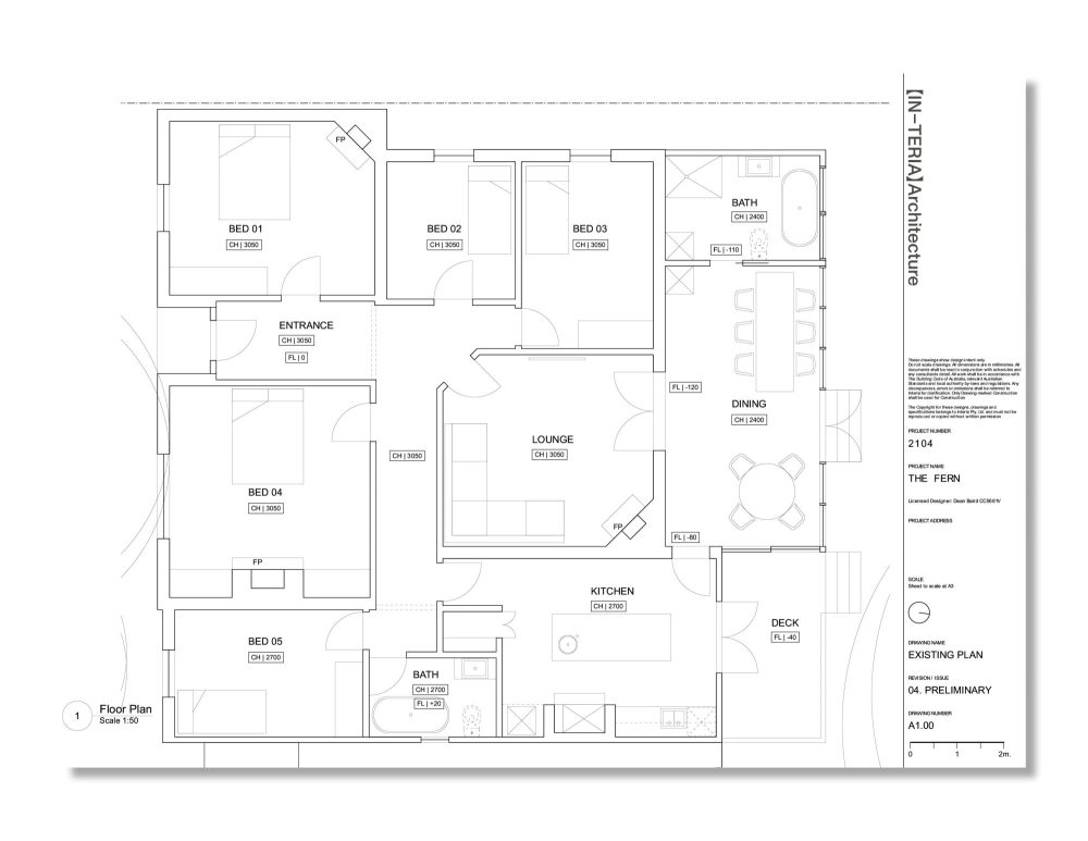
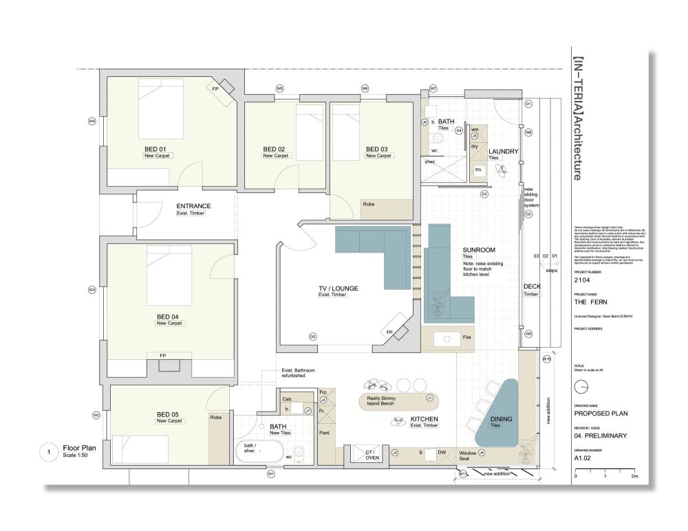
http://Architectural%20drawing%20of%20an%20extension%20proposed%20to%20a%20home%20in%20South%20Hobart